описание

Собственная парковка прямо на территории дома

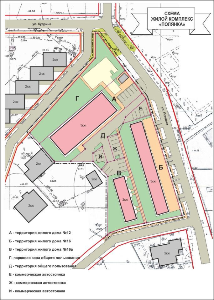
На закрытой территории жилого комплекса Полянка 12 находятся два земельных участка, которые по исходному проекту предназначены для парковки личного транспорта. Эти земельные участки находятся в частной собственности и не относятся к общей собственности жильцов.

Гарантированное место для вашего автомобиля

Ваш автомобиль всегда под боком. Видно из окна. Право собственности подтверждено свидетельством Росреестра.

Экономия времени и нервов на поиск свободной парковки

Решите проблему парковки Вашего транспортного средства раз и навсегда!Избавьтесь от необходимости поиска свободного места для вашего стального друга. Ваше собственное место прямо рядом со входом в дом.

Инвестиция в ваш комфорт и удобство

Собственный участок земли в городе. Отличное дополнение к Вашей квартире, которое существенно повышает стоимость Вашей недвижимости. Оформление в собственность! 

Не сомневайтесь - покупайте, пока вас не опередили соседи
По вопросам покупки или аренды обращаться

+7953-823-72-11 Владислав

что предлагается

подробнее об участках

На территории жилого комплекса Полянка организованы парковочные места. Земельные участки, на которых расположены эти парковки находятся в частной собственности и могут быть приобретены для целей парковки автомобиля.

Перечень участков:

  • Пять размеченных участков рядом со въездом (74:36:0712001:4048-52,62)
  • Большая парковка на 15 мест напротив дома Полянка 12 (74:36:0000000:54976)

Более подробно разметку участков можно посмотреть на Публичной кадастровой карте Росреестра.


ВОЗМОЖНА долгосрочная АРЕНДа

вы можете успеть 
К продаже предлагаются 6 мест около въездных ворот и 

9 мест на большой площадке напротив дома Полянка 12

Позвони прямо сейчас

Наши контакты

Количество парковок ограничено, успевайте забронировать собственное место для авто!

Ул. Полянка, 12, г.Челябинск
CRM-форма появится здесь